Westfire Uniq 32 Wide Frame DEFRA Approved Wood Burning Ecodesign Inset Stove

  • In Stock | 48 Hour Delivery
Special Price £3,113.95 Regular Price £3,460.00
(Price includes VAT and Delivery)
Please select from the following product options:
  • Specifications
    Guarantee 5 Years
    Efficiency 82%
    Energy Rating A Plus
    DEFRA Approved Yes
    Airwash System Yes
    Construction Steel
    Flue Size 5-inch (125mm)
    Fuel Type Wood Only
    Flue Outlet Top Only
    Fuel Grate Type Wood Burning Only
    Heat Output 7 kW
    More Colours No
    Log Length 650mm
    Suitable For 12mm Hearth No
    External Air Compatible Yes
    Distance to Combustibles - Sides 150mm
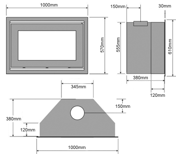
  • Product Sizes
    Westfire Uniq 32 Wide Frame DEFRA Approved Wood Burning Ecodesign Inset Stove
    Overall Height 570mm
    Overall Width 1000mm
    Overall Depth 415mm
    Depth to Centre Flue (D) 150mm
    Inset Height 555mm
    Inset Width 810mm
    Inset Depth 415mm
  • Description

    Immerse yourself in the captivating warmth and timeless beauty of the Westfire Uniq 32 landscape inset wood stove. This remarkable creation is a true masterpiece, designed to effortlessly elevate any living space. With its natural charm and wide frame, this stove is a showstopper that will steal the spotlight in any room.

    Prepare to be mesmerised as you gaze through the widescreen glass window, which grants you a breathtaking view of the dancing flames. The Uniq 32 effortlessly creates the ambience of an open fire, making it the ultimate focal point for those in search of the perfect feature wall centrepiece. Plus, its compact design is a godsend for those who long for the enchantment of a fireplace but are constrained by limited floor space.

    This wood-burning wonder is not only a delight to behold; it is also an eco-conscious choice. The DEFRA approval and Ecodesign compliant 7.0kW rating make it ideal for use in Smoke Control Areas. Experience the joy of cosy evenings by the fire while keeping your environmental footprint in check. The Uniq 32 has the power to efficiently heat spaces of up to 150M3, ensuring you stay snug and comfortable throughout the seasons.

    • Stunning wide frame design for an eye-catching aesthetic.
    • 'Widescreen' glass window provides a brilliant view of the flames.
    • Creates the ambience of an open fire, perfect for feature wall centrepieces.
    • Compact size ideal for those with limited floor space.
    • DEFRA approved and Ecodesign compliant 7.0kW for eco-friendly wood burning in Smoke Control Areas.
    • Efficiently heats spaces up to 150M3, ensuring cosy comfort.

     

    Find the perfect stove for your home at our showrooms

    Explore more wood-burning, electric, and gas stoves plus fires, fireplaces and fire surrounds at our Cheadle, Bromsgrove and Stockport showrooms.

  • Delivery Info

    Free 1 Man Delivery – For Full Details Please See Delivery Information

    Our "Free Delivery" is a one-man service. The goods will arrive on a lorry that is about the size of a fire engine. (Please let us know in advance if you have restricted access or other local issues that could affect delivery).

    The lorry has a tail lift that allows the driver to get the item(s) off the vehicle. The order will be packed and secured onto a pallet and the driver will have a pallet truck. He'll be able to wheel this as close as possible to your property. The pallet truck can only be wheeled over a finished surface so it's not possible to wheel it over a gravelled drive, steps, steep slopes for example. The pallets are normally about 1m wide so this is the minimum width gate they can fit through. Please note that the driver is not insured to unpack or carry the item(s) into your house.

    Fitting Kits and Liner Packs might arrive separately by courier delivery on the same day unless specified/requested in advance. An email confirmation will be sent if this is the case.

    If the goods are showing 48hr delivery, then this is the quickest time we're able to deliver these items (We do not deliver at weekends). You'll be asked to select a delivery date when purchasing the goods. Please note that if you live offshore these dates do not apply as it will take us slightly longer to get the goods to you and we will contact you directly.

    Please note that it is an all-day delivery service which is generally from 9 am – 6 pm Monday to Friday. Delivery Depots, if they have the facility, will text in advance but as the vans do multiple runs a day you might not receive a text until the afternoon if this service is available.

    Due to current pallet network pressures mainly due to driver shortages we cannot guarantee delivery on your chosen day but will do our best to communicate this as soon as we are made aware by the carriers.

    PLEASE NOTE THAT WE STRONGLY ADVISE THAT YOU DO NOT BOOK ANY CONTRACTORS, PLUMBER’S, OR FITTERS UNTIL YOU HAVE RECEIVED YOUR GOODS AS UNEXPECTED DELAYS CAN OCCUR.

  • FAQs
    No questions yet. Be the first to ask the question!

Not the right fit? - Take our quiz to find your perfect stove

User Manuals and Guides

pdf
(Size: 144.6 KB)
Flue & Ducting Warranty sheet for Chimney Liner. Please read carefully if you have ordered a liner kit with your stove. Contains important information.
pdf
(Size: 2.1 MB)
User manual and installation instructions for the Westfire Uniq 32 Defra Approved & Ecodesign Ready Wood Burning Inset Stove. All Models: Narrow frame and Wide frame versions

Visit our Showrooms

Explore our full range of wood burning stoves, BBQs, grills and outdoor heating at our showrooms.

Cheadle

Stanley Green Retail Park, 
Earl Rd, Cheadle
SK8 6PT

Explore >

Stockport

137 Wellington Road North
Stockport, Cheshire
SK4 2PF

Explore >

Bromsgrove

15 Sherwood Rd
Bromsgrove
B60 3DR

Explore >

Package includes: 

Woodford Carrington 5 Multifuel Stove (Ideal Home Award winner), Flue liner Pack (flue liner, adapter, chimney cap), Fitting Kit (stove pipe, register plate, carbon monoxide detector) Full Installation (by a HETAS registered installer)